Dom modułowy 125 m2
Start / Domy modułowe / Domy mieszkalne / 125 m2
Szczegóły projektu
- Rodzaj:
Całoroczny
- Dach:
Dwuspadowy, blacha na rąbek (35°)
- Powierzchnia:
125 m²
- Czas montażu:
3-5 dni na Twojej działce
- Warianty:
Surowy zamknięty, Deweloperski, Pod klucz
Cena od
345 000
zł netto
Stan surowy zamknięty
- Konstrukcja ścian 15 cm
- Wełna Rockwool 20 cm
- Wykończenie ścian - Forestia
Całoroczny
Zbuduj wymarzony dom z nami!
Zamień marzenie na własny dom w kilka dni!
zł netto
Pobierz materiały
Inne projekty
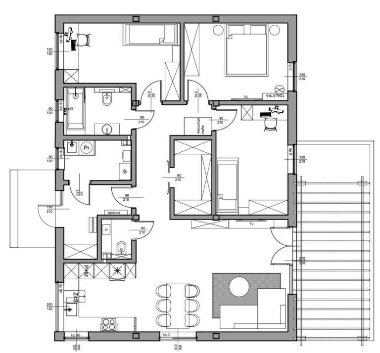
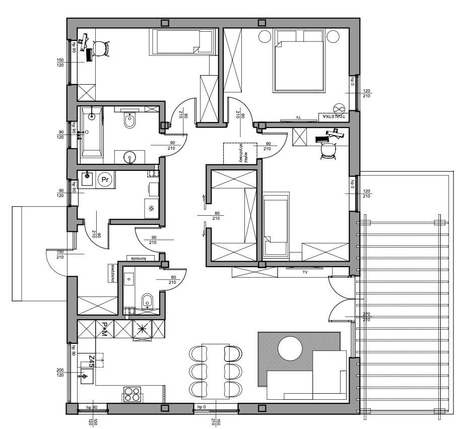
O projekcie 125 m2
Poznaj nasz największy model 125 m², zaprojektowany z myślą o rodzinach, które nie uznają kompromisów. Imponująca przestrzeń dzienna z panoramicznymi oknami, wyraźnie wydzielona strefa nocna i przemyślany układ pomieszczeń gwarantują maksymalny komfort każdego dnia.
To potężna dawka przestrzeni, w której znalazło się miejsce na wszystko: ogromny salon z aneksem kuchennym, komfortowe sypialnie, pojemną garderobę i funkcjonalne zaplecze gospodarcze. Zawsze masz też możliwość indywidualnej konfiguracji układu ścian działowych.
Cena od
345 000
zł netto
Stan surowy zamknięty
- Konstrukcja ścian 15 cm
- Wełna Rockwool 20 cm
- Wykończenie ścian - Forestia
Całoroczny
Dlaczego warto nas wybrać?
Skandynawska jakość
Certyfikowane drewno świerkowe i świetna izolacja (20 cm wełny RockWool). Ciepło zimą, chłodno latem.
Montaż w cenie
Nie martwisz się ukrytymi kosztami. Transport i montaż na miejscu bierzemy na siebie.
Norweski standard wnętrz
W wariancie "pod klucz" stosujemy m.in. wodoodporne panele ścienne FIBO w łazienkach i sufity Forestia.
Błyskawiczna realizacja:
Zapomnij o miesiącach spędzonych na budowie. Twój dom przyjeżdża gotowy.
Wizualizacje
Zobacz przykładowy dom od środka
Zastanawiasz się, jak wygląda życie w ModeraHouse? Kliknij „Play” i zajrzyj do środka!
Wybierając wariant „Pod Klucz”, wchodzisz do gotowego domu – Ty tylko parzysz pierwszą kawę.
Formularz kontaktowy
- Skontaktuj się z nami
Porozmawiajmy o Twoim nowym domu
Masz pytania dotyczące domów modułowych? Jesteśmy tu, aby rozwiać wszelkie wątpliwości. Zadzwoń lub napisz – chętnie pomożemy!
Telefon
Adres e-mail
Adres
ul. Szkolna 34, 37-621 Basznia Dolna
Godziny otwarcia
Pon – Pt / 8:00 – 16:00
- Simple & Transparent Pricing
Choose the Right Construction Plan for Your Project
Basic Plan
$2500
/ Project
Perfect for small residential projects or renovations.
- Site Planning & Consultation
- Basic 2D Floor Plan
- Standard Material Recommendation
- Email Support
Professional Plan
$5000
/ Project
Ideal for medium to large construction and design projects.
- Full 3D Architectural Design
- Project Timeline & Cost Estimate
- Premium Material & Finishing Options
- Priority Support
Most Popular
Enterprise Plan
Costum
Best for commercial, industrial, or high-scale developments.
- Complete Design & Build Management
- Advanced Structural Engineering
- On-site Supervision & Consultation
- Dedicated Project Manager
















